- Home
- Legnano
- Vendita
- Casa villa
- Villette bifamiliare
- Rif. L600
€ 450.000
Legnano - via cadorna
Dati immobile
Descrizione immobile
**Villa Bifamiliare in Vendita a Legnano - Un'Oasi di Comfort e Stile!**
Scopri questa splendida villa bifamiliare, costruita negli anni '90, che offre un ampio spazio abitativo su un unico livello, con un piano seminterrato versatile.
Circondata da un giardino privato di 500 mq, questa proprietà è perfetta per chi cerca tranquillità e comodità.
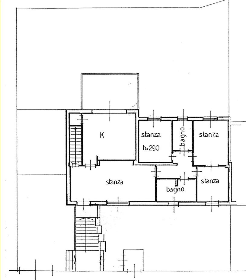
Il piano rialzato ospita un luminoso soggiorno, una cucina abitabile con accesso al terrazzo, tre camere da letto e doppi servizi, ideali per famiglie.
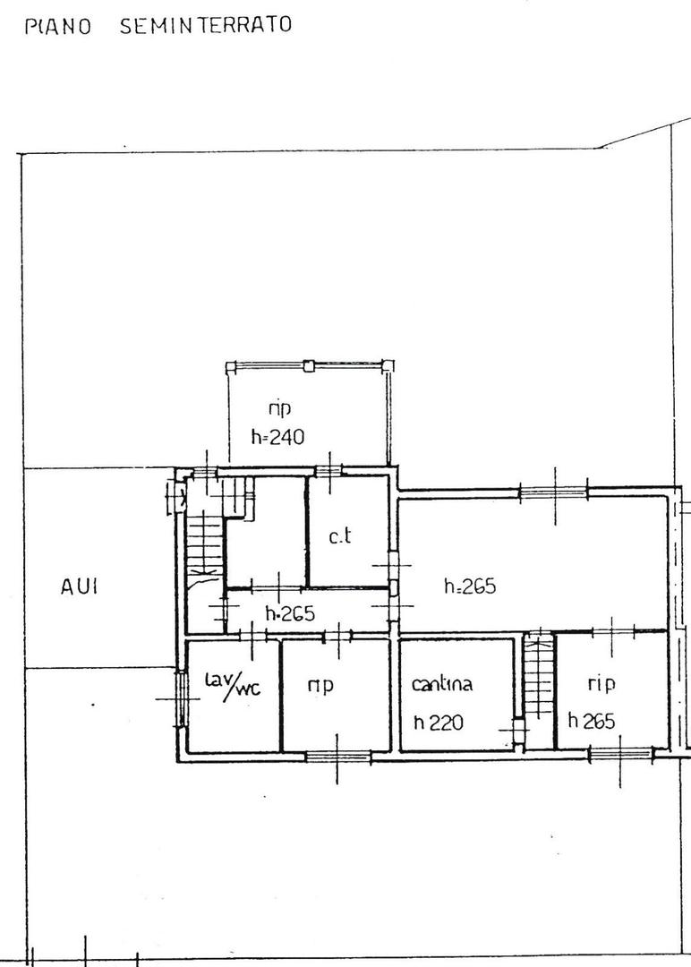
Il piano seminterrato è un vero gioiello: una taverna accogliente con camino, locali hobby e una lavanderia ben attrezzata.
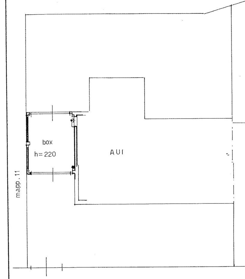
Inoltre, non manca un ampio box auto e un piazzale piastrellato per parcheggiare ulteriori veicoli.
Le finiture di alta qualità, come gli infissi in metallo doppio vetro e l'impianto di allarme, garantiscono sicurezza e comfort.
La posizione strategica della villa permette di raggiungere facilmente supermercati, farmacie, scuole e ristoranti.
Le fermate dei bus e i collegamenti con Milano e Varese sono a pochi passi.
Non perdere l'opportunità di vivere vicino a Rho Fiera, Milano e all'aeroporto di Malpensa, con accesso a splendide aree verdi .
Questa villa è la scelta perfetta per chi cerca spazio e comodità.
Contattaci oggi stesso al n. 347/1220531 per maggiori informazioni e per prenotare una visita!
Ti aspettiamo!
Seguici sui social per rimanere aggiornato sulle nostre proposte @facebook @instagram @tiktok
Contattaci


Invio messaggio in corso...


Invio messaggio in corso...