- Home
- Turate
- Vendita
- Casa villa
- Ville unifamiliari
- Rif. 633
€ 288.000
Turate - via buonarroti
Dati immobile
Descrizione immobile
**Villa Singola in Vendita - Un'Oasi di Spazio e Comfort**
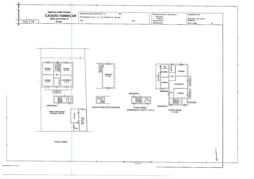
Scopri questa splendida villa singola, ideale per due nuclei famigliari , composta da due appartamenti con ingresso indipendente.
Al piano terra, l'appartamento da riattare offre un luminoso soggiorno, un accogliente cucinotto, una sala da pranzo,un bagno e due camere da letto, perfette per creare un ambiente personalizzato.
Non dimenticare la scala che conduce al seminterrato, dove si trova una cantina di 35 mq, perfetta per riporre tutto ciò di cui hai bisogno.
Al primo piano, l'appartamento è già pronto per essere abitato.
Con accesso indipendente al piano terra, una scala conduce al piano primo ,qui troverai un'ampia sala da pranzo con accesso a un balcone soleggiato ed un comodo cucinotto, un soggiorno con ulteriore balcone, tre camere da letto, di cui una con bagno privato, e un ulteriore bagno con vasca.
Ogni angolo di questo spazio è pensato per garantire comfort e praticità.
Completa l'offerta un box auto di 23 mq e un giardino privato di 250 mq, ideale per godersi momenti di relax all'aria aperta.
La villa è dotata di riscaldamento a caldaia autonoma con caloriferi. e si trova in buono stato.
Con una superficie ampia , questa proprietà rappresenta un'ottima opportunità sul mercato.
Non perdere l'occasione di visitarla!
Contattaci oggi stesso per prenotare la visita all'immobile al n. 347/12.20.531.
Seguici sui social per rimanere sempre aggiornato sulle nostre proposte su @facebook @instagram @tiktok
Contattaci


Invio messaggio in corso...


Invio messaggio in corso...